Rentals

Edmonds Heights Unit D

Intro

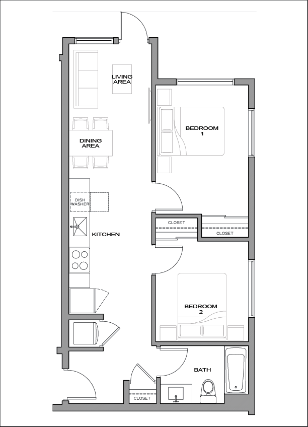
Edmonds Heights Unit D

The 2 bedroom units are spacious and well-lit, with a corner location offering additional windows and natural light. Perfect for small families or roommates.

702

Area (Sq. Ft.)

2

Bedrooms

2

Bathroom

3

Units Available

Unit Gallery

Your Apartment Search Ends Here

View our units available for rent in Vancouver. Take a virtual tour online or schedule an in-person viewing to find your perfect unit.